
循环流化床燃烧技术是近年来发展和推广的清洁、低温燃煤技术,我公司在总结和借鉴国内循环流化床锅炉成熟技术基础上,针对性的进行技术升级和产品换代,产品技术性能、节能环保性能、运行可靠性及使用维护等方面有明显提高和改善。SHX系列流化床锅炉利用循环浮式燃烧技术,具有高热效率,高脱硫率,NOx排放量低,结构简单,操作方便等特点,具有广泛的应用前景,是替代传统锅炉的理想产品。
工作流程: 燃料通过输送机送入炉膛,在密相区与空气混合,流化并燃烧,高温烟气携带大量正在燃烧的固体颗粒冲刷稀相区,一边燃烧,一边将燃烧释放的热量传递给受热面,加热工质(水),未燃烬的固体颗粒进入分离器,被收集下来,通过返料器重新送回密相区,循环燃烧,从而提高燃烧效率。燃烬的固体细小颗粒随高温烟气逃逸出分离器,冲刷对流受热面和尾部受热面,经除尘器除尘后排入大气。

1. 可燃用的燃料范围广
炉膛内温度能均匀地保持在一个稳定范围(850℃~950℃)。加入炉膛的燃料颗粒迅速加热到炉膛温度并着火燃烧。因而循环流化床锅炉可以不需辅助燃料,而燃用各种固体燃料。
2. 燃烧效率高
燃料进入锅炉炉膛后迅速与大量炽热的床料混合,立即着火燃烧,燃烧速率高。此外被旋风分离器分离下来的未燃尽颗粒又送回炉膛内循环燃烧,延长了燃料燃烧时间,有利于燃料的燃尽。
3. 脱硫效果好
循环流化床锅炉脱硫剂在炉膛中是在相应反应温度下进行脱硫,炉膛内的燃料和物料在炉膛内的内循环运动和外部循环使脱硫剂在锅炉内平均停留时间较长,而脱硫过程充分。此外,加入锅炉的脱硫剂颗粒粒径较小(0.1mm),与物料的反应接触面积较大,使脱硫效率较高。
4. 氮氧化物NOx排放量低
循环流化床锅炉炉膛温度在850℃~950℃之间,温度较低,生成的NOx较少。此外,循环流化床采用分段送风和分段燃烧,可以有效减少NOx的生成。
5. 炉膛截面热负荷高
炉内混合强、传热快,炉膛截面热负荷高,一般为3~5MW/㎡。
6. 灰渣可进行多种综合利用
由于循环流化床锅炉为低温燃烧和燃烧效率高使锅炉排出的灰渣未经熔化过程且含碳量小,并且灰渣中含有大量的氧化钙和硫酸钙,可用于水泥掺和料、建筑材料和砖瓦生产等方面的综合利用。
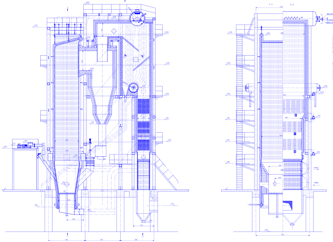
SHX35-1.25-AII 锅炉为双锅筒横置自然循环锅炉,锅炉房双层布置,锅炉运转平台高度一般为6000mm。锅炉本体基本尺寸:锅炉上锅筒为Φ1500×16,中心标高18350mm;下锅筒为Φ900×14,中心标高10920,安装完毕后外围尺寸为13100×9960×19900 (长×宽×高)。
锅炉前部炉膛采用全模式水冷壁悬吊结构;分离系统采用绝热式高温旋风分离器和自动平衡U型返料器;上下锅筒之间布置对流管束保证了足够的受热面;省煤器采用三级钢管省煤器结构;尾部布置空气预热器。
