DZL系列锅炉为单锅筒纵置式水火管锅炉,燃烧设备为链条炉排。炉膛左右两侧水冷壁为辐射受热面,炉膛两翼和锅筒内螺纹烟管为对流受热面.锅炉本体在总体结构上采用上置锅筒,水冷壁管和集箱左右对称布置的形式。锅筒由筒体和前后管板组焊而成。该锅炉炉膛布置合理,燃烧效率高。本锅炉采用多种环保措施,如布袋除尘,双塔脱硫等,使锅炉烟尘排放达到国家环保标准。
该锅炉可以燃烧各种生物质燃料,例如木片、稻壳、甘蔗渣、稻草、花生壳、芥菜梗、棉花梗、椰子壳等。生物质燃料来源广泛,是可再生的绿色能源。生物质能源将逐步代替煤炭,成为主要能源之一。与燃煤锅炉相比,生物质燃料成本低廉,大幅度降低运行成本。

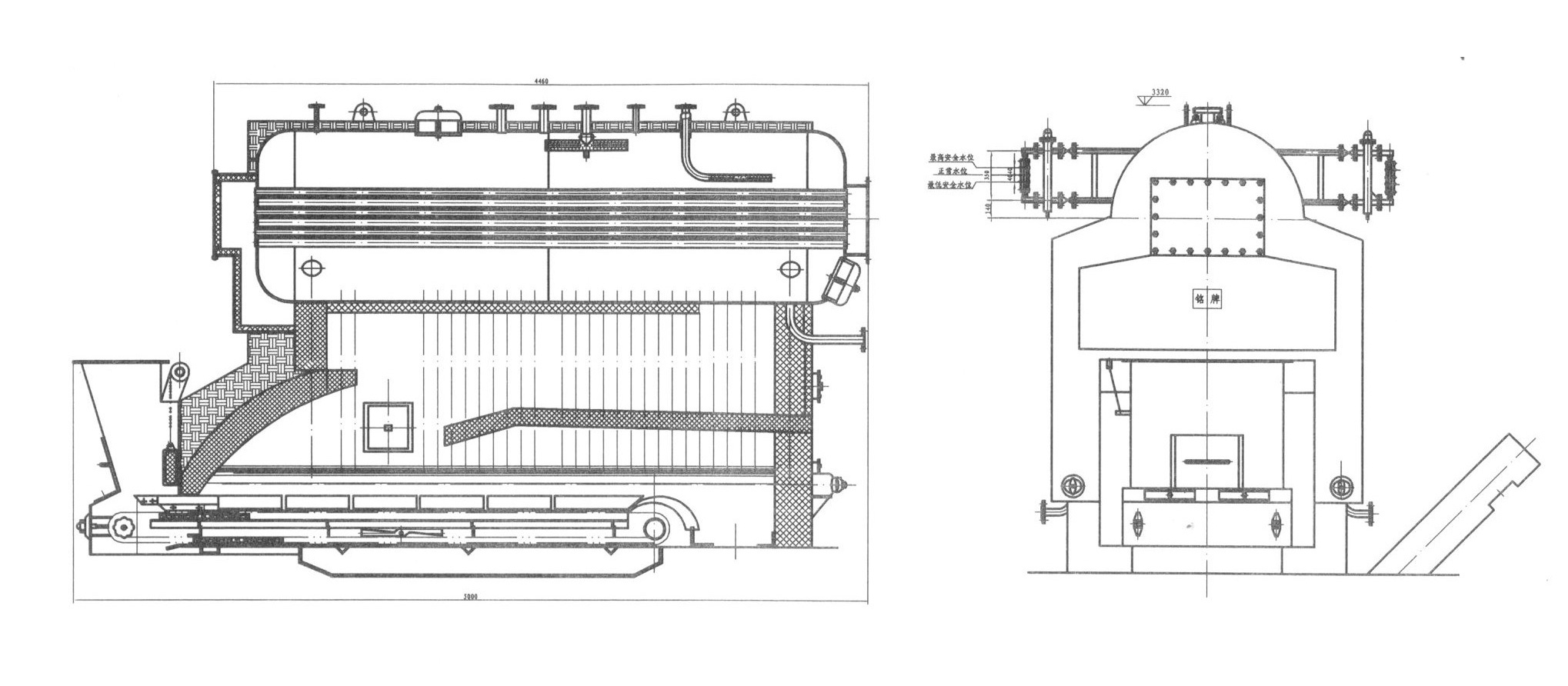
1. 采用拱型管板与螺纹烟管组成锅筒,使锅筒由准钢性体变为准弹性体结构,取消了管板区的拉撑件,减少了应力。管板内烟管由两回程改为单回程,解决了管板裂纹的难题。
2. 锅筒下部由于布置了升管排,消除了锅筒底部的死水区,使泥渣不易沉积,锅筒高温区能得到良好的冷却,预防了锅筒下部鼓包。
3. 采用螺纹烟管,获得了强化传热效果,达到锅炉升温、升压快的特点,提高了锅炉的热效率。
4. 结构紧凑,与同类型锅炉比较,外形尺寸小,节省锅炉房基建投资。
5. 运行稳定、调整方便、出力足。
6. 炉膛内的八字墙、出口烟窗部分均有一定降尘作用。使锅炉的原始排尘浓度控制在标准以下,保证了锅炉烟尘排放达到国家环保规定的指标。
7. 独特的双层二次风设计,改善了生物质燃料的着火条件,采用独立风室,达到了合理布风,使炉膛内形成一个有利于燃烧的空气动力场,似的燃烧温度高、燃烧效率高。
| 型号 | DZL0.7-0.7/95/70 DZL0.7-1.0/95/70 | DZL1.4-0.7/95/70 DZL1.4-1.0/95/70 | DZL2.8-0.7/95/70 DZL2.8-1.0/95/70 | DZL4.2-1.0/95/70 | DZL5.6-1.0/95/70 DZL5.6-1.25/95/70 |
| 额定热功率(MW) | 0.7 | 1.4 | 2.8 | 4.2 | 5.6 |
| 额定压力(Mpa) | 0.7/1.0 | 0.7/1.0 | 0.7/1.0 | 0.7/1.0 | 1.0/1.25 |
| 出水温度(℃) | 95 | 95 | 95 | 95 | 95 |
| 回水温度(℃) | 70 | 70 | 70 | 70 | 70 |
| 炉排有效面积 (m2) | 2.22 | 4.1 | 5.85 | 7.95 | 9.75 |
| 热效率 (%) | 82 | 82 | 82 | 82 | 82 |
| 注:参数仅供参考,若有变化以实际图标为准。 | |||||
